Tatel Restaurant at the Ritz Carlton
A luxury design for a celebrity client’s restaurant in Miami Beach.



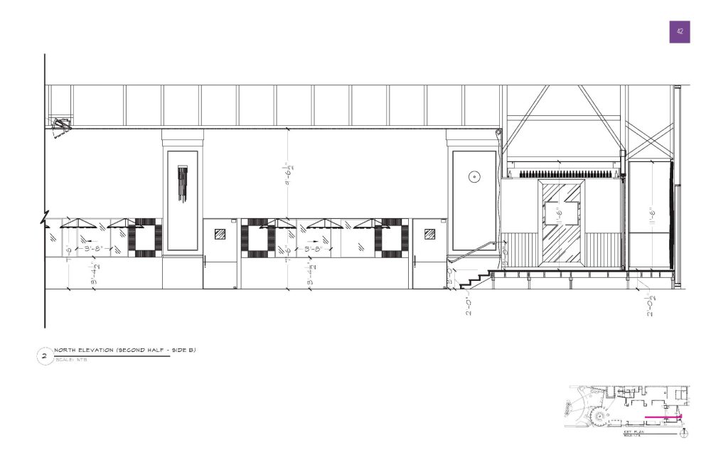
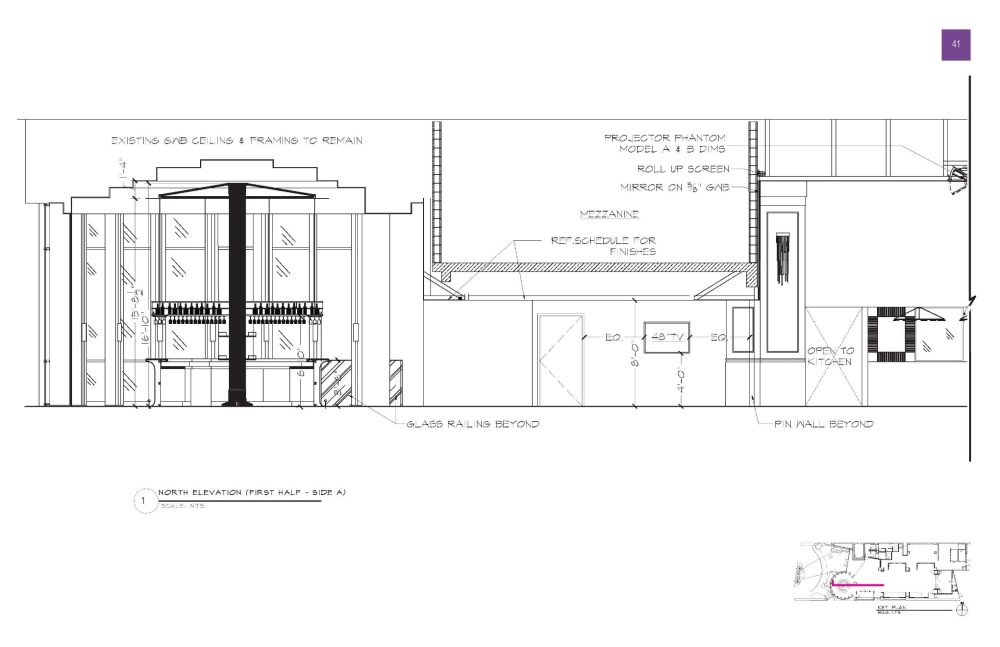
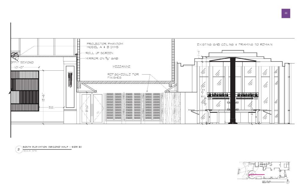
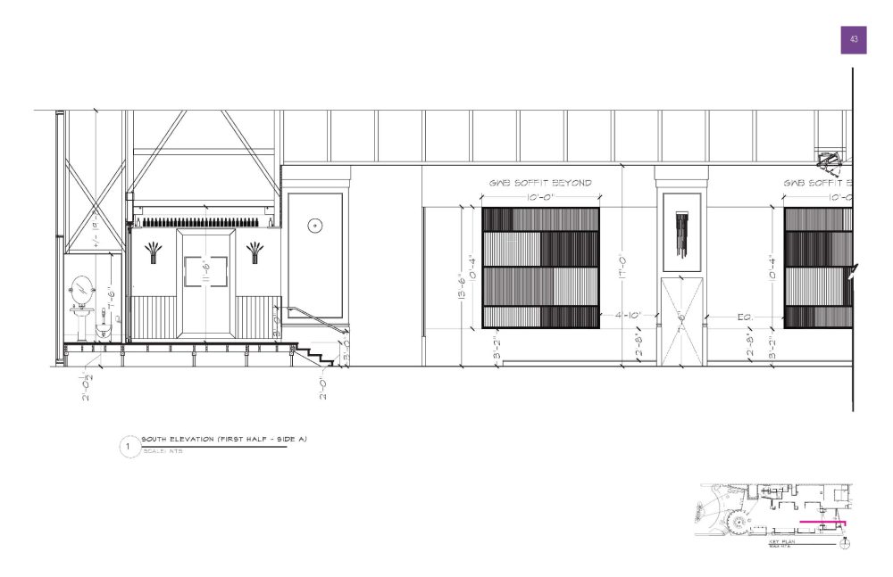
Faced with challenges from the South Beach Neighborhood Council and Miami Beach Landmarks – we fought tooth and nail to get our design approved. We worked meticulously on planning committee presentations, emphasizing the unique features of the chandelier above the bar and it’s connection to Miami’s Art Deco skyline.


Located in the Ritz Carlton Miami Beach – this Art-Deco lined street in South Beach is fraught with tourists. We carefully preserved elements of local architecture and waterfront features, blending locality with hospitality.










